- Price$165,000
- Acres9.75
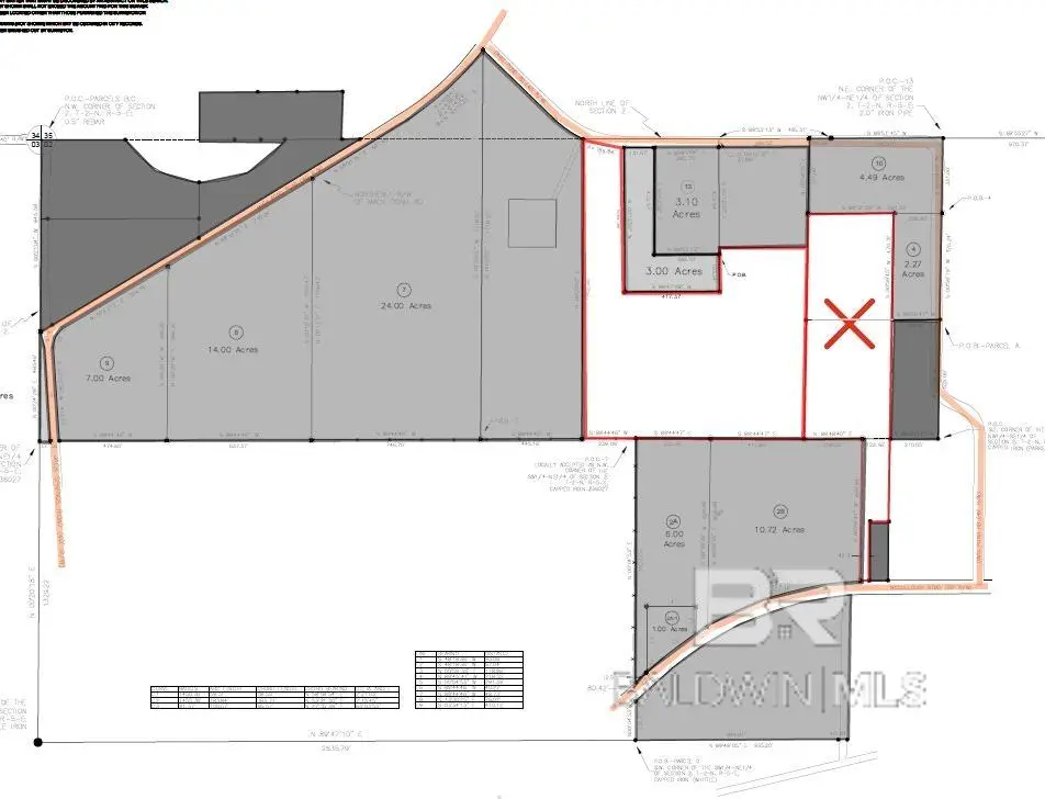
Lot 3 Mccullough Road, Atmore
Build Your Future on 9.75+/- Acres in McCullough, AL! There's plenty of room for a garden, livestock, recreational space, plus additional acreage available for purchase. Escape to the countryside and put down roots in this beautiful land in McCullough. Cleared and offering an oversized 3840 sf barn, this land is ideal for building a custom home, placing a mobile home, or possibly converting into a barndominium. A 60' wide hydraulic door on the front of the barn makes it perfect for storing your equipment or use as a spacious shop. Property is priced per acre; final acreage to be determined by a survey.This fertile land has been used for agricultural purposes, making it ideal for gardening, cattle, or horses—perfect for those seeking a self-sustaining lifestyle. And while you’ll enjoy the peace of rural living, you’re still close to key amenities: - Dollar General, Warehouse Market, and Poarch Creek Travel Plaza for daily needs. - Perdido River Farms Meat Processing Facility, supporting local farmers and ranchers. - Just a short drive to downtown Atmore for shopping, restaurants, and entertainment. - I-65 access nearby, providing easy travel to Mobile, Pensacola, and beyond. Take advantage of this versatile property and create the lifestyle you’ve always wanted! DISCLOSURE: Buyer is responsible for all due diligence to detect the presence of exfoliants & pesticides, if any, due to long-term agricultural airstrip operations. No environmental assessments have been conducted or provided. Buyer to verify all information during due diligence.
Essential Information
- MLS® #374625
- Price$165,000
- Acres9.75
- TypeLand
- Sub-TypeUnimproved Land
- StatusActive
Amenities
- AmenitiesNone
- UtilitiesSee Remarks, Water Available
- ViewNone/Not Applicable
- WaterfrontNo Waterfront
School Information
- ElementaryNot Baldwin County
- MiddleNot Baldwin County
- HighNot Baldwin County
Listing Details
- Listing OfficePhd Realty, Llc
- Contact Infopatty@phdrealty.com
Community Information
- AddressLot 3 Mccullough Road
- AreaOther Area
- SubdivisionMcCullough
- CityAtmore
- CountyEscambia, AL
- StateAL
- Zip Code36502
Exterior
- Lot DescriptionLand, 5-10 acres, Level, See Remarks, Farmland
Additional Information
- ZoningNot Zoned,Outside Corp Limits
The data relating to real estate for sale on this website comes from the Baldwin County Association Of REALTORS®. The information being provided is for consumers' personal, non-commercial use and may not be used for any purpose other than to identify prospective properties consumers may be interested in purchasing. Information deemed reliable but not guaranteed.
Listing information last updated on March 5th, 2026 at 5:47am CST.






























